
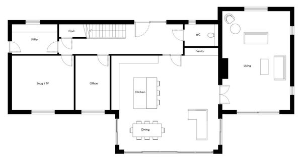
Plot 3 - Samphire - is an impressive five-bedroom home offering a perfect combination of luxurious living and modern functionality. Designed with meticulous attention to detail, this property boasts spacious interiors, high-end finishes, and a layout that caters to both family living and entertaining. Nestled within the tranquil development of The Woodlands, Plot 3 offers a serene lifestyle with access to the natural beauty and amenities of Market Rasen.
Generous Living Space: Spanning 3,293 sq. ft., Plot 3 provides ample room for growing families, social gatherings, or simply enjoying peaceful moments in a beautifully designed home.
Elegant Design: The property features multiple reception areas with large picture windows, flooding the interiors with natural light and offering panoramic views of the surrounding gardens.
State-of-the-Art Kitchen: The heart of the home, the kitchen boasts bespoke cabinetry, premium appliances, and an open-plan design perfect for family meals or hosting guests.
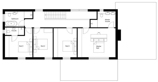
Luxurious Bedrooms: Five generously sized bedrooms, including a master suite with custom joinery, ensure comfort and privacy for all family members.
Sophisticated Bathrooms: Premium fittings, sleek finishes, and spa-inspired designs make the bathrooms a sanctuary for relaxation.
Expansive Gardens: The landscaped gardens provide a private retreat, ideal for outdoor dining, children’s play, or unwinding amidst nature.
Future Potential: Flexible spaces within the home allow for personalization, such as a home office, gym, or additional guest accommodation.
Prime Location: Located at The Woodlands, Plot 3 benefits from close proximity to Market Rasen’s boutique shops, excellent schools, and vibrant café culture, as well as the natural beauty of Willingham Woods and the Lincolnshire Wolds.
With its luxurious features, thoughtful design, and peaceful surroundings, Plot 3 at The Woodlands is an ideal home for those seeking a blend of sophistication and comfort in a prestigious countryside setting.

