
Plot 4 - Newt - is a magnificent five-bedroom home that seamlessly blends modern sophistication with timeless elegance. Situated on a generously sized half acre plot, this property is thoughtfully designed to provide spacious, light-filled interiors and luxurious finishes, making it an ideal sanctuary for family life or entertaining guests. Located within the exclusive development of The Woodlands, Plot 4 offers a tranquil lifestyle with easy access to local amenities and natural beauty.
Newt at The Woodlands is more than just a home—it’s a lifestyle choice for those seeking comfort, elegance, and connection to nature.
Elegant Living Areas: The home boasts multiple reception rooms, including a grand living room with large windows that frame picturesque views of the gardens and flood the interiors with natural light.
Luxury Kitchen: The bespoke kitchen is a showstopper, featuring high-quality cabinetry, premium appliances, and an open-plan layout that effortlessly connects cooking, dining, and entertaining spaces.
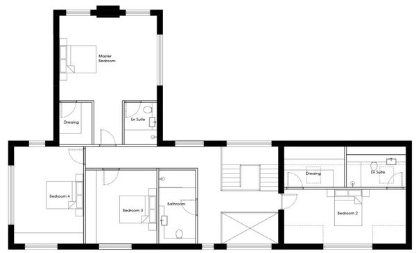
Tranquil Bedrooms: Five well-appointed bedrooms, including a stunning master suite with bespoke joinery, ensure restful retreats for all family members.
Exquisite Bathrooms: Spa-inspired bathrooms with premium fixtures, elegant finishes, and thoughtful design create a serene sanctuary for relaxation.
Outdoor Appeal: The landscaped garden surrounding Plot 4 is perfect for outdoor dining, family gatherings, or simply enjoying the peace and beauty of the countryside.

