
Plot 2 - Owls Rest - is a beautifully crafted five-bedroom home that offers a harmonious blend of modern luxury and timeless elegance. With its thoughtful layout, premium features, and idyllic surroundings, this property provides the perfect balance of style and functionality, making it an excellent choice for families or professionals seeking a refined countryside lifestyle.
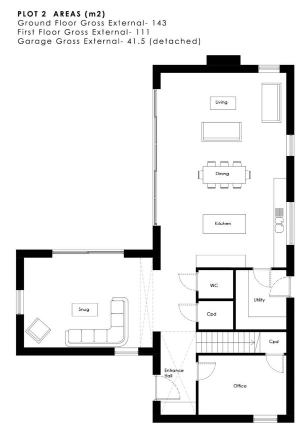
Perfect Proportions: With a generous 2,734 sq. ft. of living space, Plot 2 is designed to accommodate both the dynamics of family life and the needs of those who love to entertain.
Light-Filled Interiors: The home features expansive windows and open-plan spaces that invite natural light, creating a warm and inviting atmosphere throughout.
Modern Kitchen: A premium kitchen equipped with bespoke cabinetry, high-end appliances, and a spacious dining area makes this the heart of the home, perfect for everyday living or hosting guests.
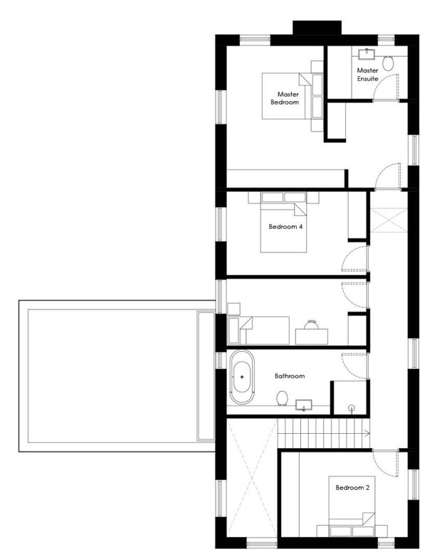
Comfortable Bedrooms: Five generously sized bedrooms, including a luxurious master suite with bespoke joinery, ensure peaceful retreats for all residents.
Elegant Bathrooms: Designed with relaxation in mind, the bathrooms feature premium fittings, sleek finishes, and spa-like touches.
Outdoor Charm: A beautifully landscaped garden surrounds the home, providing a private, tranquil space for outdoor dining, family activities, or unwinding after a busy day.
Energy Efficiency: Incorporating modern, energy-efficient technologies ensures a comfortable and eco-conscious living experience.
Prime Location: Situated within The Woodlands, Plot 2 enjoys easy access to Market Rasen’s amenities, including excellent schools, boutique shops, and vibrant cafés, as well as nearby natural attractions like Willingham Woods and the Lincolnshire Wolds.
With its sophisticated design, luxurious features, and peaceful location, Plot 2 at The Woodlands is more than just a house—it’s a home that promises an exceptional lifestyle in one of Lincolnshire’s most sought-after developments.

