
Plot 5 - Jacaranda - is a beautifully crafted five-bedroom home that combines modern luxury with the charm of countryside living. Thoughtfully designed and set on a generously proportioned plot, this property offers spacious interiors, high-end finishes, and stunning outdoor spaces. Positioned within the exclusive development of The Woodlands, Plot 5 provides the perfect environment for families or professionals seeking a sophisticated and tranquil lifestyle.
Generous Living Space: With 2,927 sq. ft. of well-planned interiors, Plot 5 offers an ideal layout for both family life and entertaining.
Bright and Inviting Interiors: Expansive windows allow natural light to flood the home, creating a warm and welcoming atmosphere throughout.
Premium Kitchen: The bespoke kitchen is equipped with state-of-the-art appliances, custom cabinetry, and ample space for cooking, dining, and gathering.
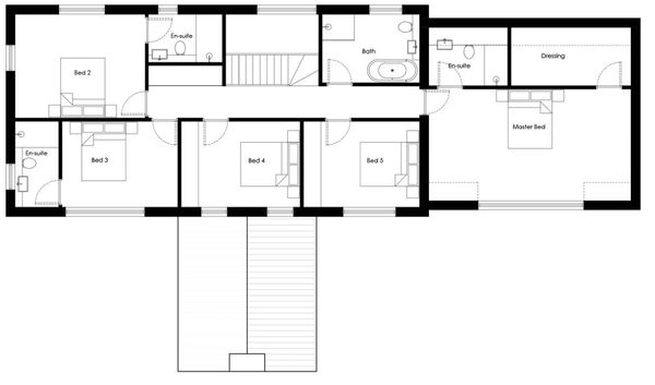
Luxurious Bedrooms: Five beautifully designed bedrooms, including a serene master suite with bespoke joinery, offer comfort and privacy for every member of the household.
Elegant Bathrooms: Spa-inspired bathrooms with premium fixtures and sleek finishes provide a touch of indulgence and tranquility.
Outdoor Living: The landscaped gardens surrounding Plot 5 are perfect for alfresco dining, family play, or quiet relaxation amidst the natural beauty of the countryside.
Flexible Spaces: Adaptable areas within the home allow for customization, such as creating a home office or additional guest accommodation.
Prime Location: Situated within The Woodlands, Plot 5 benefits from proximity to Market Rasen’s amenities, including excellent schools, boutique shops, and vibrant cafés. It is also ideally positioned near natural attractions like Willingham Woods and the Lincolnshire Wolds.
With its sophisticated design, exceptional features, and peaceful surroundings, Plot 5 at The Woodlands is a perfect home for those seeking elegance, comfort, and a connection to nature in one of Lincolnshire’s most desirable developments.

