
Plot 1 - Lilac is an exceptional five-bedroom home that perfectly embodies luxury, space, and modern living. Situated on a generously sized plot, this property offers stunning architectural design paired with unparalleled functionality. Its expansive layout and premium features make it an ideal choice for families or individuals seeking a serene countryside retreat without compromising on elegance or convenience.
Spacious Living: With over 3,293 sq. ft. of carefully designed space, Plot 1 provides ample room for family life, entertaining guests, and quiet moments of relaxation.
Thoughtful Design: The home features multiple reception areas, including a grand living room with panoramic windows that seamlessly connect the indoors with the natural beauty outside.
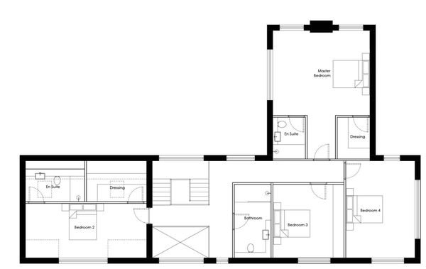
Luxurious Bedrooms: Five well-appointed bedrooms, including a master suite with bespoke joinery, ensure comfort and tranquility for all residents.
Modern Kitchen: A state-of-the-art kitchen with bespoke cabinetry, premium appliances, and a spacious layout serves as the heart of the home, perfect for family gatherings or entertaining.
Premium Bathrooms: Bathrooms are designed with relaxation in mind, featuring high-quality fittings, elegant finishes, and spa-like amenities.
Outdoor Appeal: The property is surrounded by lush, parkland-style gardens that provide both privacy and an idyllic outdoor space for recreation, dining, or simply enjoying the countryside.
Annex Opportunity: The layout allows for flexibility, offering potential to create additional living or working spaces.
Prime Location: Positioned at The Woodlands development, Plot 1 enjoys proximity to Market Rasen’s vibrant town center, excellent schools, and the natural beauty of Willingham Woods and the Lincolnshire Wolds.
With its seamless blend of luxury, practicality, and natural beauty, Plot 1 at The Woodlands offers a unique opportunity to create a forever home that combines elegance with everyday comfort.

